Principe en krachtswerking
Bij ondersteunde vingervoegovergangen zijn de (sleep)vingerplaten aan één zijde vast en aan de andere zijde transleerbaar opgelegd. De zijde waar de dilatatie wordt opgenomen is voorzien van tanden om de continuïteit van het wegdek te realiseren. De vingers glijden bij de huidige fabricaten over een kunststof, bij de oudere ontwerpen van Rijkswaterstaat was sprake van staal op staal contact, hetgeen tot onomkeerbare slijtage leidt aan zowel de vingers als het oplegpunt van de vasthoudconstructie.
De verkeersbelasting wordt door een sleepvingerplaatconstructie overgebracht naar beide hoofdconstructiedelen. De krachtswerking is statisch bepaald; de vingerplaat fungeert als een ligger op twee steunpunten.
Door dynamisch effecten ontstaat na het doorbuigen van de vingerplaat een terugveereffect waarbij de vingerplaat wil opwippen en opbuigen. Om loskomen en klapperen van de vingerplaat te voorkomen is een voorziening nodig die dit tegengaat en de vingerplaat continu in contact houd met zijn omgeving. Daarvoor zijn twee principes mogelijk
- Concept 2.2a: het opwippen wordt tegengewerkt door een vasthoudconstructie, meestal in de vorm van spiraalveren, die zich tussen beide oplegpunten bevindt.
- Concept 2.2b: het opwippen wordt tegengewerkt door een inklemmoment aan de vaste zijde. Om rotaties en verticale voegbewegingen op te kunnen nemen wordt een verende inklemming toegepast. De vingerplaat is daarbij opgelegd op een verende bedding (rubber kussen).
Platen die als rechthoek moeten dragen zijn gevoelig voor maatafwijkingen, waarbij de belasting niet goed over de vingers wordt verdeeld door overhoeks dragen. Vanwege de grote nauwkeurigheid van onderdelen is het van belang dat er altijd een stalen onderbouwconstructie wordt toegepast die nauwkeurig op hoogte gesteld en gefixeerd kan worden door lassen en/of ondergieten.
In het verleden vaak te lichte vasthoudconstructies toegepast met schotelveren of slechts boutverbindingen tussen twee uitkragende strippen (zie ook onderstaande voorbeelden. Deze bleken in de praktijk na enige tijd niet meer te voldoen waardoor de vingerplaat ging klapperen. In de meeste gevallen zijn zijn deze voegen later succesvol gemodificeerd met zware spiraalveren of zijn deze omgebouwd naar uitkragende voegovergangen.
Onderdelen en aansluitingen
Aan de hand van onderstaande voorbeelden worden de onderdelen van vingervoegen nader toegelicht.

Onderdelen ondersteunde voegovergang
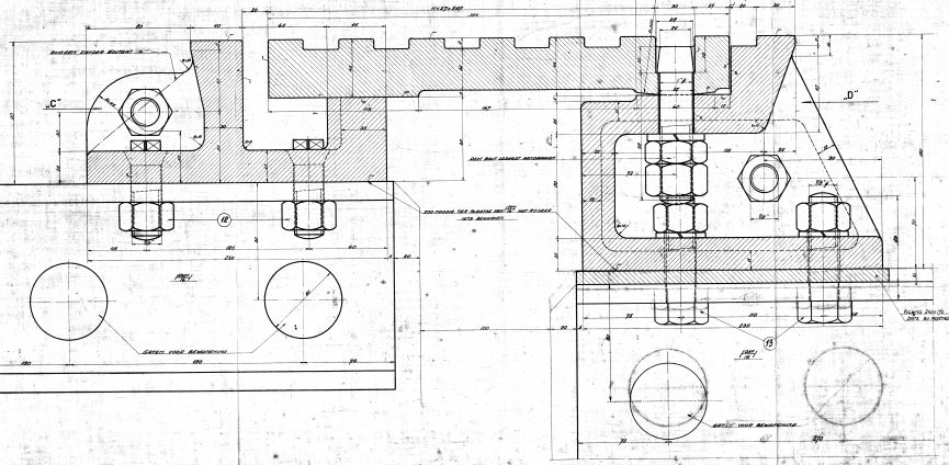
- Vingerplaat
Deze plaat maakt de voegbewegingen mogelijk en draagt de verkeersbelasting. Bij en uitkragende vingerplaat wordt de belasting naar 1 zijde afgedragen, bij een ondersteunde vingerplaat wordt de belasting naar twee zijden afgedragen. - Stalen onderbouw
Op deze onderbouw is de vingerplaat met de juiste passing opgelegd. De onderbouw draagt de krachten over op de verankering aan de brug - Achterstrip of overgangsstrip
Deze strip vormt de overgang tussen vingerplaat en aangrenzend asfalt of betonnen randbalk. Deze zorgt voor een fysieke afscheiding tussen beide delen zodat de vingerplaat goed gedemonteerd en opnieuw gemonteerd kan worden zonder negatieve invloed van of aan de aangrenzende constructie. Bij spoorvorming en/of slijtage van het aangrenzende wegoppervlak voorkomt deze het horizontaal aanrijden van de vingerplaat. - Voorspananker / anker vasthoudconstructie
Deze ankers vormen de verbinding met de onderbouw en zorgen ervoor dat de verticale krachten en momenten uit de vingerplaat worden afgedragen. De bouten of ankers aan de “achterzijde” worden door de verticale verkeersbelastingen wisselend op trek belast. Bij ondersteunde vingervoegen voorkomt dit anker dat de plaat gaat klapperen en opwaarts geslingerd wordt - Afvoerslab / afdichtingsslab
Dit onderdeel verzorgt de waterdichtheid. Het water wordt afgevoerd naar het laagste punt waar het opgevangen moet worden in een opvangbak. - Verankering
Dit onderdeel draagt alle krachten en momenten uit de onderbouw over op de aangrenzende constructie. Bij een stalen brug zijn dit gelaste verstijvingen die de onderbouwplaat verbinden met de einddwarsdrager. - Verbinding afvoerslab (klemconstructie)
Waterdichte bevestiging van de afdichtingsslab aan de onderbouw, meestal in de vorm vaneen klemconstructie.Dient vervanging van de afdichtingsslab mogelijk te maken en goed bestand te zijn tegen aantasting. - Uitkragende console voor vasthoudconstructie
Bij ondersteunde vingervoegen houdt dit onderdeel de vingerplaat op zijn plaats. De console draagt de voorspankracht in het anker af naar de onderbouw. - Voorspanveer vasthoudconstructie
Deze zorgt onder alle omstandigheden voor blijvende voorspanning tussen onderbouw en ondersteunde vingerplaat . Slijtage van glijdnokken en verticale voegbewegingen mogen niet leiden tot een onacceptabel verlies aan voorspanning. - Glijdnok
Deze nok fungeert als alzijdig beweegbare glijdoplegging en maakt translaties en rotaties mogelijk. De nok draagt de verticale belasting af op de onderbouw. De nok glijd over een RVS tegenloopmateriaal en is aan slijtage onderhevig. Is een vervangbaar onderdeel. - Rotatieschijf
Deze flexibele schijf (alzijdig opgesloten door een ring) maakt rotatie mogelijk en draagt horizontale krachten over op de fixatienok. Is een vervangbaar onderdeel. - Fixatienok
Deze nok fungeert als dook en draagt de verticale krachten en de horizontale (rem/acceleratie)krachten uit het verkeer af op de onderbouw.
Door Rijkswaterstaat zijn in loop der tijd diverse ontwerpen gemaakt voor zowel stalen dekken, betonnen dekken en staal-beton dekken. Enkele voorbeelden van aansluitingen zoals deze door Rijkswaterstaat in het verleden zijn toegepast:
De aansluiting van de vingerplaat op de wegverharding is ook een punt van aandacht. Het aanrijden van vingerplaten zonder randbalken of aanrijdstrips (transistion strip) zal versneld leiden tot negatieve gevolgen voor de verankering en toename van risico’s voor de gebruiksveiligheid. In hoofdlijnen zijn er twee aansluitingen denkbaar: aansluiting direct op asfalt (met overgangsstrip) of aansluiting op een (staalvezel)betonnen randbalk. Bij stalen bruggen wordt meestal gekozen voor een aansluiting direct op de wegverharding, bij betonnen bruggen meestal voor een staalvezelbetonnen randbalk i.v.m de werkruimte voor het iinbetonneren.
Specifieke aandachtspunten
- Ontwerp:
- De typen die verend ingeklemd zijn aan één zijde (concept 2.2b), zijn gevoelig voor hoogteverschillen tussen de hoofdconstructies omdat wanneer de glijdende zijde zakt, de vingers mogelijk geen contact meer maken en wanneer deze stijgt er een te hoge contactdruk ontstaat. Dit gaat samen met (wisselende) inklemmomenten aan de andere zijde. Dit gedrag kan een probleem zijn wanneer de voeg in een langshelling ligt en de brugopleggingen in langsrichting horizontaal bewegen. Ook bij rotaties van einddwarsdragers kunnen hoogteverschillen ontstaan. Daarnaast kan, net als bij rubber matvoegen (zie par 4.3) relaxatie optreden in de flexibele tussenlaag waardoor de voorspanning sterk afneemt. De combinatie van een te lage voorspanning en wisselende inklemkrachten in de ankers kan leiden tot vermoeiing in de ankers.
- Bij de typen met vasthoudconstructies (concept 2.1a) bleken deze verankeringen bij de Rijkswaterstaatontwerpen gevoelig te zijn voor vermoeiing in combinatie met corrosie. Dit kwam doordat er voor de vasthoudconstructie veelal korte ankers met veerschotels werden toegepast en omdat de vasthoudconstructie continu werd blootgesteld aan vocht en zooizouten doordat deze zich in de natte zone bevond.
Bij de huidige concepten is het een aandachtspunt dat de vasthoudconstructie zich buiten de natte zone bevind. Ook kunnen stalen spiraalveren vervangen worden door RVS spiraalveren. - De vingerplaten dienen onderling gekoppeld te worden om herverdeling van krachten bij onverhoopt falen van een verankering mogelijk te maken.
- Uitvoering: Veel onderdelen vereisen een nauwkeurige dimensionering. Platen die als rechthoek moeten dragen zijn gevoelig voor maatafwijkingen (gevaar voor overhoeks dragen).
- Beheer:
- De contactvlakken bij de ondersteuningen van de sleepvingers zijn gevoelig voor slijtage. Vervuiling van de spleten en aantasting van de conservering zal versneld leiden tot slijtage van de glijdelementjes onder de vingers, waardoor speling kan ontstaan.
- Klapperende geluiden zijn een teken dat er iets mis is met de voorspanning in het systeem en dat onderhoud nodig is. De problemen zijn alleen bekend van de concepten van Rijkswaterstaat. Deze oudere typen, volgens een vergelijkbaar principes, vertoonden breuk van de ankers. In tegenstelling tot uitkragende vingervoegen leiden ondersteunde vingervoegen van deze oude generatie minder snel tot gebruiksonveilige situaties. Dit komt vooral doordat de vingerplaten aan de onderzijde onderling ook werden gekoppeld, zodat bij breuk van een anker er een herverdeling plaatsvindt naar de ankers van de naastliggende vingerplaten. Vaak gaat dit wel gepaard met een klapperend geluid. Dit dient als belangrijke waarschuwing voor het treffen van maatregelen te worden opgevat Langdurige speling tussen onderdelen als gevolg van drukverlies door gebroken veren, moet zoveel als mogelijk worden voorkomen. De kans op uitrijden van vingerplaten door trillingen is door het ontwerp gering, maar dat wil niet zeggen dat onderhoud langdurig uitgesteld kan worden. De gelaste koppelingen tussen de vingerplaten kan op den duur bezwijken door vermoeiing. Beheersing van risico’s door preventief onderhoud en tijdige signalering van schades is in het belang van de gebruiksveiligheid en het voorkomen van geluidhinder. Gebroken veren moeten zo snel als mogelijk worden vervangen.
Varianten
Mageba Gleitfinger GF (concept 2.1a)
Het Zwitserse bedrijf Mageba heeft twee type voegovergangen die behoren tot deze productfamilie sleepvingervoegen. De GF vingervoeg is daarvan een.
Bij de standaarduitvoering ligt de vasthoudconstructie in de natte zone boven de afdichtingsslab. Het is echter ook mogelijk om de vasthoudconstructie buiten deze zone te houden door de afdichtingslab te bevestigen aan de kopse zijde vasthoudconstructie

Voor zover bekend zijn er drie projecten waarbij bij reconstructie van de voegovergang eenzijdig scharnierende, ondersteunde vingervoegen zijn toegepast (met neerhoudconstructies). Dit zijn:
- Boogbrug Beek in de rijksweg A2 (2010)
- Nieuwe Schellingwouderbrug Amsterdam (2012)
- Waalbrug Nijmegen (2020)
Bij de Waalbrug Nijmegen is een verbeterd type toegepast waarbij de vasthoudconstructie buiten de natte zone is gehouden en de spiraalveren in RVS zijn uitgevoerd.

Mageba Tensaflex RC (concept 2.2b)
De Mageba Tensaflex RC is een sleepvingervoeg waarbij de neerhoudfunctie wordt vervuld door een verende inklemming door middel van een dubbele rij ankers op een verende bedding van een aangevulcaliseerde rubber stripoplegging (links in de figuur). In deze video is de werking verder uitgelegd.
Het voordeel is dat de constructie minder bewegende delen omvat, maar te grote hoogteverschillen in langsrichting kunnen leiden loskomen van de ankers en dus klapperen, dan wel verhoogde contactdrukken in de opleggingen van de vingers. Daarnaast zal een aangebrachte voorspanning door relaxatie in de tijd afnemen. Een ander voordeel van dit systeem is dat de vingerplaten in korte sectiebreedtes zijn uitgevoerd en eenvoudig en snel zonder kraanhulp kunnen worden gemonteerd en uitgewisseld. De standaard versie van de vingerplaat wordt rechtstreeks op een betonnen ondergrond gemonteerd. Dit vereist een zeer nauwkeurige afwerking van het beton die in principe alleen d.m.v. ondergieten kan worden bereikt. Eventueel kan het systeem ook met een stalen onderbouw geleverd worden.
Voor zover bekend is dit type in Nederland nog niet toegepast.

Freyssinet NFT-joint (concept 2.2b)
Freyssinet heeft een ondersteunde voeg van het concept 2.2b.
In vergelijking met het Tensaflex RC-systeem heeft dit concept een dikker rubber kussen en slechts een enkele rij ankers waarmee sleepvingerplaat is bevestigd.
In Nederland is voor zover bekend dit type voegovergang niet toegepast. De verwachting is dat met dit systeem problemen ontstaan doordat de voorspankracht grotendeels verloren gaat door relaxatie van het rubber kussen. Daarmee zijn de ankers onvoldoende in staat om voldoende klemkracht te blijven uitoefenen en zal de vingerplaat gaan klapperen.











