Principe en krachtswerking
Bij uitkragende voegovergangen zijn de vingerplaten middels voorspanbouten vastgeklemd op een ondergrond. In berekeningen wordt er vanuit gegaan dat de belasting op de overlappende vingers over beide vingerplaten wordt verdeeld.
Bij verkeersbelasting op het midden van de voeg neemt iedere zijde dus 50% van de belasting op. Door de excentriciteit van de belasting t.o.v de rand van de ondersteunde constructie (rotatiepunt) ontstaat een moment dat via de ankerbouten moet worden doorgegeven aan de onderliggende constructie. De ankerbouten, vooral die aan de achterste worden op wisselende uitwendige trekkrachten belast. Het optreden van breuk door vermoeiing wordt tegengegaan door het voorspannen van zo lang mogelijke bouten.
In onderstaande figuur is de werking van de voorgespannen ankerbouten nader uitgelegd. Door de trekvoorspanning (tak 1) in de lange bout ontstaat een drukvoorspanning in zijn relatief stijvere omgeving (tak 2). Bij een uitwendige trekkracht neemt de boutkracht enigszins toe, maar de drukvoorspanning behoorlijk af. Als gevolg hiervan is de effectieve spanningswisseling in de bout gering. Wanneer de vingerplaat en/of onderbouw niet goed vlak is ( tak 3) of in het geheel niet aanligt (tak 4) groeit het aandeel van de uitwendige kracht in de spanningswisseling in de bout, hetgeen de kans op vermoeiingsbreuk vergroot.
Succesfactoren voor een duurzaam functionerende vinger voeg zijn :
- Goed passing van de contactvlakken van voorgespannen verbindingen
- zeer vlakke en rechte oppervlakken zonder vervuilingen; stalen onderbouw, machinaal nabewerkt.
- toepassing van korte vingerplaten, circa 60 – 80 cm
- Beperkte dikte van de conservering in de contactvlakken i.v.m kruip
- Lange voorspanbouten t.b.v. een zo groot mogelijke verlenging. Voorspanning d.m.v vijzel en via moer aan te brengen
- Steekmaat/afstand bouten maximaal 200mm in alle richtingen voor een waterdichte steek.
- Minimale (rand)afstanden boutgaten: 2,5 x gatdiameter
- Rechtstreekse krachtsafdracht aan onderliggende verankering zodat buiging in de onderconstructie wordt voorkomen.
In het verleden zijn veel vingervoegen toegepast waarbij relatief grote vingerplaten middels voorspanbouten werden voorgespannen in getapte draadgaten in de onderbouw. Bij onvoldoende aanliggen van de vingerplaat op de onderbouw is de getapte draad vaak de zwakste schakel en beschadigt deze waardoor de voorspanning verdwijnt. Ook kan het zijn dat de bout afbreekt bij de eerste draadgang. Kostbare reparaties zijn dan nodig en vaak zijn deze niet erg duurzaam.

uitwendige trekkracht
Onderdelen en aansluitingen
Aan de hand van onderstaande voorbeelden worden de onderdelen van vingervoegen nader toegelicht.

- Vingerplaat
Deze plaat maakt de voegbewegingen mogelijk en draagt de verkeersbelasting. Bij en uitkragende vingerplaat wordt de belasting naar 1 zijde afgedragen, bij een ondersteunde vingerplaat wordt de belasting naar twee zijden afgedragen. - Stalen onderbouw
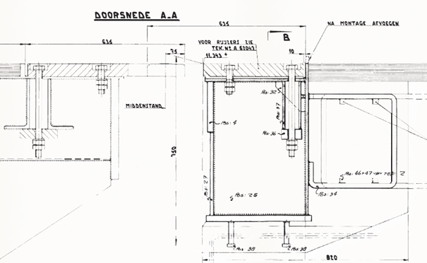
Op deze onderbouw is de vingerplaat met de juiste passing opgelegd. De onderbouw draagt de krachten over op de verankering aan de brug - Achterstrip of overgangsstrip
Deze strip vormt de overgang tussen vingerplaat en aangrenzend asfalt of betonnen randbalk. Deze zorgt voor een fysieke afscheiding tussen beide delen zodat de vingerplaat goed gedemonteerd en opnieuw gemonteerd kan worden zonder negatieve invloed van of aan de aangrenzende constructie. Bij spoorvorming en/of slijtage van het aangrenzende wegoppervlak voorkomt deze het horizontaal aanrijden van de vingerplaat. - Voorspananker
Deze ankers vormen de verbinding met de onderbouw en zorgen ervoor dat de verticale krachten en momenten uit de vingerplaat worden afgedragen. De bouten of ankers aan de “achterzijde” worden door de verticale verkeersbelastingen wisselend op trek belast. Bij ondersteunde vingervoegen voorkomt dit anker dat de plaat gaat klapperen en opwaarts geslingerd wordt - Afvoerslab / afdichtingsslab
Dit onderdeel verzorgt de waterdichtheid. Het water wordt afgevoerd naar het laagste punt waar het opgevangen moet worden in een opvangbak. - Verankering (8)
Dit onderdeel draagt alle krachten en momenten uit de onderbouw over op de aangrenzende constructie. Bij een stalen brug zijn dit gelaste verstijvingen die de onderbouwplaat verbinden met de einddwarsdrager. - Verbinding afvoerslab (klemconstructie)
Waterdichte bevestiging van de afdichtingsslab aan de onderbouw, meestal in de vorm vaneen klemconstructie.Dient vervanging van de afdichtingsslab mogelijk te maken en goed bestand te zijn tegen aantasting.
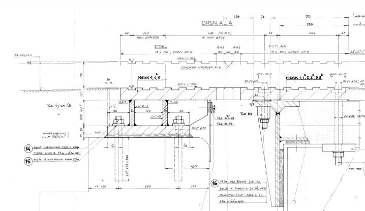
De vingerplaten zijn verankerd in een stalen basisconstructie, direct in de beton of aan de staalconstructie van de brug en mengvormen daarvan. De bouten of ankers aan de “achterzijde” worden wisselend op trek belast. In het verleden heeft dit fenomeen tot veel schaden geleid, terug te voeren op vermoeiing in combinatie met dynamische belastingen. De verankering vereist een nauwkeurige beheersing van de geëiste uitvoeringskwaliteit, zowel met betrekking tot reinheid, vlakheid en aanspanmethoden. Het verdient de voorkeur om zo lang mogelijk voorspanankers toe te passen die op de moer kunnen worden voorgespannen. Dit vereist wel een aanzienlijke inbouwhoogte en toegankelijkheid van de onderzijde. Lange bouten moeten met kleine vijzels worden voorgespannen opdat geen overmatige torsie optreedt in de bouten. Door Rijkswaterstaat zijn in loop der tijd diverse ontwerpen gemaakt. Met name de ontwerpen waarbij de vingerplaten rechtstreeks op een betonnen ondergrond of stalen dekplaat werden gemonteerd bleken in de praktijk een korte levensduur te hebben. Het verdient aanbeveling altijd een ruime sparing te voorzien in de hoofddraagconstructie en landhoofd voor een vingervoegovergangsysteem met een stalen onderbouw. Deze onderbouw dient te voldoen aan de hoogste vlakheidseisen. Lassen aan onderbouw kunnen de vlakheid aantasten. D.m.v een mechanische nabewerkig (frezen) van zowel de onderbouw als de vingerplaten kan worden verzekerd dat de platen voldoende vlak zijn voor een goed passing.
De aansluiting van de vingerplaat op de wegverharding is ook een punt van aandacht. Het aanrijden van vingerplaten zonder randbalken of aanrijdstrips (transistion strip) zal versneld leiden tot negatieve gevolgen voor de verankering en toename van risico’s voor de gebruiksveiligheid. In hoofdlijnen zijn er twee aansluitingen denkbaar: aansluiting direct op asfalt (met overgangsstrip) of aansluiting op een (staalvezel)betonnen randbalk. Bij stalen bruggen wordt meestal gekozen voor een aansluiting direct op de wegverharding, bij betonnen bruggen meestal voor een staalvezelbetonnen randbalk i.v.m de werkruimte voor het inbetonneren.
Specifieke aandachtspunten bij toepassing
Er dient op gelet te worden dat de bewegingen van de brug geen onacceptabele hoogteverschillen tussen de vertande platen veroorzaken. Deze bewegingen kunnen ontstaan door horizontale verplaatsingen van de opleggingen in langsrichting in combinatie met een langshelling in het wegdek, maar ook door buiging van de einddwarsdrager onder verkeersbelasting . Reeds bij kleine hoogteverschillen van circa 2 mm zullen de laaggelegen vingers de wielbelasting al niet meer dragen en de hooggelegen vingers overbelast worden, tenzij hier in het ontwerp rekening mee wordt gehouden. Ook bij inbouw dient er goed op gelet te worden dat de vingerplaten exact op dezelfde hoogte worden afgemonteerd.
Varianten
Uitkragende vingervoegen vereisen een zeer vlakke aansluiting en beheerste krachtafdracht naar de omgeving. De verankering van de vingerplaat blijkt in de praktijk de zwakste schakel. Om die reden worden vingerplaten vaak op een stalen onderbouw geplaatst (concept 2.1a). Daarbinnen kunnen op hoofdlijnen twee types verankeringen worden onderscheiden:
- Type 1: Vingerplaten gemonteerd d.m.v. voorspanbouten in getapte draadgaten van de onderbouw of onder de onderbouwconstructie gelaste moeren. De voorspanning wordt via aandraaien van de boutkop aangebracht
- Type 2: Vingerplaten gemonteerd d.m.v. vervangbare voorspanbout sets. De voorspanning wordt via aandraaien van de moer aangebracht
Type 1 heeft als nadeel dat er bij onverhoopt verlies van de voorspanning geen schade ontstaat aan de getapte draad in het zachtere basismateriaal van de onderbouw. Kostbare en tijdrovende reparaties zijn dan nodig om deze schade te herstellen. Bij Type 2 kunnen de bouten en moeren volledig worden uitgewisseld en is reparatie snel mogelijk.
Daarnaast zijn er ook types zonder stalen onderbouw, concept 2.1b. Hierbij worden de vingerplaten ondergoten met betonmortel of aangebracht op een speciebed. Na uitharding van de mortel/specie worden de vingerplaten voorgespannen middels relatief lange ankers, mede om krimp en kruipeffecten in het beton te compenseren.
Reisner Wolff Sollinger Hütte (RWSH) – 2.1a verankeringstype 1
De meeste recente ingebouwde uitkragende vingervoegen in Nederland zijn gefabriceerd door RWSH en ingebouwd door Heijmans (RWSH is inmiddels door Mageba overgenomen en bestaat dus niet meer als zelfstandige fabrikant).
De eerste generatie van deze uitkragende vingervoegen heeft een traditionele lusverankering aan de betonconstructie en rechte vingers. Later zijn ook schuine vingers toegepast. De vingers zijn volledig uitkragend. De vingerplaten zijn met boutverbindingen bevestigd aan een gezet U-profiel. Er is gebleken dat er problemen kunnen ontstaan doordat de U-vormige plaat relatief slap is en de krachten niet rechtstreeks op de ankerschotten worden overgedragen. Bij latere uitvoeringen is een zwaarder UNP-profiel toegepast. Dit type is door RWS toegepast op de volgende locaties:
- IJsselbrug Deventer (A1) Transgrip F240
- Boogbrug te Echt Transgrip F100 Int.
- Maasbrug Empel (A2) Transgrip F140X + F360X
- De Meernbrug Utrecht Transgrip F180X
- Harmsenbrug (N57) Transgrip F180X
- Rijnbrug Heteren (A50) Transgrip F140X/F220X/F190X
De laatste generatie, type LL (long lifespan) betrof een ontwerp met gedeeltelijk uitkragende terug liggende vingers en een verbeterde verankering. Hierbij zijn de vingerplaten rechtstreeks bevestigd aan in het beton opgenomen zware ankerbouten die directe krachtafdracht mogelijk maakt. Ook zijn de bouten langer uitgevoerd, waardoor een betere vermoeiingssterkte wordt verkregen.
Dit type is toegepast op de volgende locaties:
- Lekbrug Vianen (A2) Transgrip F240LL Transgrip F360LL
- Waalbrug Zaltbommel (A2) Transgrip F240LL Transgrip F320
- Cortenoeversche brug Zutphen Transgrip F290LL Transgrip F360LL
- Brug o/d Zuid-Willemsvaart N279 Transgrip F180LL
Mageba Tensa Finger RSFD – concept 2.1a verankeringstype 1 of 2
Mageba produceert een eigen relatief compacte vingervoeg in het assortiment onder de naam TENSA RSFD. Deze is leverbaar in diverse capaciteiten tot 500 mm. De vingers hebben aan het uiteinde een sparing aan de onderzijde, waardoor ze over de basisplaat van de tegenovergestelde oever kunnen bewegen. Op deze wijze wordt de vingerplaat meer compact.
Deze zijn in Nederland o.a. toegepast in:
- de Noorderbrug in de A67 bij Venlo (type 250)
- de staalbetonbrug over de Zuid-Willemsvaart in de A50 bij Veghel (type 140)
- de Andrej Sacharovbruggen (N325) nabij Arnhem
De voegovergangen zijn leverbare in diverse varianten.
- Type aansluiting: asfalt (type A) of beton (type B)
- Met en zonder overgangsstrip
- Verankering vingerplaten:
- In aangepaste moeren aan de onderzijde van een hoekprofiel
- in getapte gaten in dikke onderplaat
- Door dunne onderplaat, geschroefd in getapte gaten in de ankerschotten
- Met uitwisselbare boutsets
Onderstaand enkele voorbeelden van mogelijke varianten
Xtend – concept 2.1a, verankeringstype 2
De Xtend vingervoeg wordt in Zwitserland door Aigner Albrecht gefabriceerd. In NL verkrijgbaar via Heijmans en Hartmann Engineering.
Deze voeg lijkt sterk op de andere typen uitkragende vingervoegen maar de bevestiging van de vingerplaten aan de stalen basis is anders gedetailleerd. Een boutenpaar wordt met de kop naar beneden ingebracht via een centraal gat met sleuven naar voren en achteren en daarna in positie gehouden d.m.v. een sjabloonplaat. Als laatste wordt de vingerplaat er op gelegd waarbij de bouten door de vingerplaat steken. De moeren worden aangebracht en van boven af aangedraaid. Op deze manier wordt een grotere zekerheid verkregen over de aangebrachte voorspanning dan bij een aan de kop voorgespannen lange bout. Ook kunnende bouten bij reparatie en onderhoud eenvoudig door nieuwe worden vervangen. In deze video wordt de werking toegelicht. Tevens worden alle contactvlakken (onderzijde vingerplaat en bovenzijde onderbouw) nabehandeld middels vlak frezen.
belangrijkste kenmerken:
- Vervangbare boutsets;
- Alle contactvlakken zijn nabehandeld middels frezen;
- Vervangbare rubberslab vanaf de onderzijde / zijkant (dus zonder verkeershinder)
- Voegbalken worden preventief geinjecteerd voor ultieme zekerheid;
- Diverse uitvoeringsvarianten:
- Asfalt met overgangsstrip
- Randbalken, overgangsstrip optioneel
Deze zijn in Nederland o.a. toegepast in:
- Hornerbrug, type F170 (2016)
- Flyovers Rottepolderplein F200/F220 (2021)
- Brug Ravensbosch A79, type F180 (2021)
Freyssinet/CIPEC, Concept 2.1a of 2.1b
Freyssinet heeft twee typen uitkragende vingervoegen in zijn assortiment: De Wd-joint en de WP-joint. De Wd joint betreft een vingerplaat van aluminium zonder onderbouwconstructie die rechtstreeks tegen het beton wordt voorgespannen door middel van relatief lange voorspanankers in een enkele rij geplaatst. De WP-joint heeft hetzelfde principe maar is uitgevoerd in thermisch verzinkt staal. De vingers hebben een verlopende dikte. De WP-joint kan desgewenst ook worden uitgevoerd met een stalen onderbouwconstructie.

Het systeem zonder stalen onderbouw is gevoeliger uitvoeingsfouten/onvolkomenheden door onvolledig /onvlak dragen en kans op schade aan beton. Uit berekeningen blijken de volgende zaken:
– Hoge drukspanning in de ondersabeling;
– Trekspanningen in de ondersabeling;
– Spleet tussen ondersabeling en voeg bij rand beton onder dynamische belasting (opslingering);
– Trekspanning onder de ankers van de voorspanning, op te nemen door splijtwapening
Bij onvoldoende kwaliteit van het beton en de ondersabeling kunnen er scheuren ontstaan en kan afbrokkeling plaatsvinden.
Volgens de leverancier is het een robuust ontwerp voor intensief bereden wegen met veel zwaar verkeer. Met name in Frankrijk is er veel ervaring mee opgedaan. Ervaringen in Nederland met soortgelijke concepten in rijkswegen: de vingerplaten kunnen op termijn los komen. In minder intensief bereden secondaire wegen lijken de voegovergangen de vereiste levensduur te kunnen behalen.
Expertmening RWS: gezien de kwetsbaarheid van de fundatie van de vingerplaten en de uitvoeringsrisico’s is toepassing in autosnelwegen niet aan te bevelen.




















